Kapitalanlage – 2 Häuser mit Scheune und Ausbaupotential in Herbolzheim
79336 Herbolzheim, Reihenhaus zum Kauf
Kontaktdaten
-
NameHerr Daniel Kölblin
-
FirmaKölblin Immobilien
-
AdresseÜber der Elz 5
79312 Emmendingen -
E-Mail Zentrale
-
Tel. Zentrale
-
Tel. Durchwahl
-
Mobil
Objektdaten
-
Objekt IDDK-1772
-
ObjekttypenHaus, Reihenhaus
-
AdresseHauptstraße 101, 101a und 103
79336 Herbolzheim -
Wohnfläche ca.157,67 m²
-
Grundstück ca.358 m²
-
Nutzfläche ca.190,52 m²
-
Zimmer7,5
-
Badezimmer2
-
Wesentlicher EnergieträgerStrom
-
Stellplätze gesamt2
-
Statusvermietet
-
Stellplätze2 Stellplätze
-
Käuferprovisionkeine Außenprovision
-
Kaufpreis550.000 EUR
Ausstattung / Merkmale
- ✓ Denkmalgeschützt
Energieausweis
-
Energieausweisnicht erforderlich
-
GebäudeartWohngebäude
-
Wesentlicher EnergieträgerStrom
Objektbeschreibung
Beschreibung
Willkommen in Ihrem neuen Zuhause in Herbolzheim – einem Ort mit Geschichte, Charakter und außergewöhnlichem Potenzial.
Das bezugsfreie Haus Nr. 101a mit großzügiger Scheune, auf ca. 292 m² Grundstück, eröffnet Ihnen eine seltene Gelegenheit: Gestalten Sie sich ein individuelles Zuhause ganz nach Ihren Vorstellungen und sichern Sie sich gleichzeitig ein Stück historischer Baukultur.
Aktuell ist eine Neuvermietung des Hauses für 1.395 € Kaltmiete geplant.
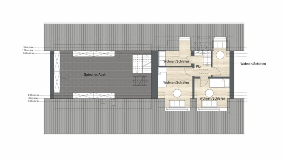
Das Wohnhaus überzeugt durch seine gemütliche, authentische Atmosphäre und bietet mit vier Zimmern und einem Badezimmer den idealen Rahmen für Paare oder kleine Familien. Im Erdgeschoss erwarten Sie die Küche mit Wohnbereich sowie das Bad. Im Obergeschoss stehen Ihnen vier flexibel nutzbare Zimmer zur Verfügung, perfekt als Schlaf-, Kinder- oder Homeoffice-Bereich. Ein Speicher sowie ein Keller sind ebenfalls vorhanden.
Ein besonderes Highlight ist das enorme Entwicklungspotenzial: Die von außen zugänglichen Toiletten neben dem Hauseingang bieten – vorbehaltlich Genehmigung – die Möglichkeit zur Erweiterung der Wohnfläche um ca. 13 m². Hier können Sie zusätzlichen Raum schaffen, z.B. für ein Wohnzimmer, und den Wert der Immobilie nachhaltig steigern.
Die angrenzende Scheune eröffnet weitere Perspektiven: Ob großzügige Lagerfläche, Hobbywerkstatt oder kreativer Ausbau zu individuellem Wohnraum – hier sind Ihren Ideen kaum Grenzen gesetzt (Genehmigung vorausgesetzt). Solche Flächen sind heute eine echte Seltenheit und bieten Ihnen maximale Flexibilität für die Zukunft.
Besonders hervorzuheben ist die durch das Denkmalamt begleitete Historie des Objekts. Eine Ortsbegehung fand zuletzt im Jahr 2020 statt, und entsprechende Unterlagen zur Bauforschung liegen vor – eine ideale Grundlage für Liebhaber historischer Immobilien.
Das Reihenmittelhaus Nr. 103 ist möbliert an eine zuverlässig Firma vermietet (1.490 € monatliche Kaltmieteinnahme).
Im Erdgeschoss befindet sich der Flur mit Eingangsbereich, die Küche, ein sperates WC und Badezimmer.
Die Küche ist mit einer modernen Einbauküche inkl. Elektrogeräte und einem Essbereich ausgestattet. Das Badezimmer, sowie das WC verfügen über weiße Fliesen und jeweils ein Fenster.
Im 1. Obergeschoss befindet sich das Wohnzimmer mit ca. 13m² und ein Schlafzimmer. Das Dachgeschoss ist in zwei Räume aufgeteilt. Das größere Zimmer kann als Schlafzimmer genutzt werden und das andere Zimmer eignet sich gut als Büro oder begehbarer Kleiderschrank.
Zwei Kellerräume und der Dachboden bieten Ihnen genügend Stauraum.
Ein eigener Stellplatz steht Ihnen vor dem Haus zur Verfügung.
Auch die Lage überzeugt: Zentral in Herbolzheim gelegen, profitieren Sie von kurzen Wegen zu Einkaufsmöglichkeiten, Schulen und Freizeitangeboten. Hier verbinden sich urbaner Komfort und gewachsene Nachbarschaft auf ideale Weise.
Fazit:
Immobilien für Menschen mit Weitblick – ob zur Eigennutzung, als Projekt mit Wertsteigerungspotenzial oder als Liebhaberobjekt mit Charakter.
Nutzen Sie diese seltene Chance und lassen Sie Ihre Wohnträume Wirklichkeit werden. Vereinbaren Sie noch heute einen Besichtigungstermin. Wir freuen uns auf Ihre Anfrage.
Ausstattung
Nr. 101a und 101:
- Denkmalgeschütztes, unterekellerte Objekte bestehend aus 1 Haus (Keller + EG + Dachgeschoss + Dachspitz/Speicher), 4 Zimmer, Küche, Bad), Toilettenanlage (EG), Scheune (Keller + EG + Dachgeschoss + Dachspitz)
- Grundstück: 1 Stellplatz. Kein Garten
Wohnhaus:
- beheizt mittels Infrarotheizungen sowie Nachtspeicheröfen
- Warmwasserboiler im Keller (2023 erneuert)
- keine Einbauküche vorhanden
- Stellplatz vor dem Haus
Scheune:
- die historische Stuhlkonstruktion von 1609 ist mindestens in Teilen erhalten
Nr. 103:
- elektronische Fußbodenheizung
- 1x Außenstellplatz vor dem Reihenmittelhaus
- Badezimmer mit Duschwanne und doppeltem Waschbecken
- Der Anschluss für die Waschmaschine befindet sich im Badezimmer im EG
-Das Reihenmittelhaus hat keinen Garten/keine Terrasse od. Balkon
Im Jahre 1992 wurde das Objekt zu einem Wohnhaus umgebaut. Leider konnten wir ältere Ereignisse bezüglich des Haues nicht ermitteln.
Sonstige Informationen
Bitte beachten Sie folgende Hinweise:
In der Wohnungswirtschaft zählt ein Raum mit ca.10 m² als ein vollständiges Zimmer. Bei diesem Objekt liegen einige Zimmer unter den 10 m², da die Dachschrägen abgezogen werden müssen. Diese Zimmer werden rechtlich als ,,halbes Zimmer" bezeichnet sind aber auf Grund der grösseren Bodenfläche trotzdem gut zu nutzen.
Die Häuser befinden sich im Bereich des Bodendenkmals der Kirche St. Alexius. Dies betrifft in erster Linie die Keller und die Fassaden aber auch den Innenraum des Eckhauses sowie Teile des Dachstuhls der Scheune. Eine Abstimmung ggf. geplanter Baumaßnahmen mit dem Denkmalamt sollte erfolgen.
Ein Energieausweis muss nicht vorgelegt werden (§ 79 Abs. 4 GEG).
Das Objekt wird provisionsfrei für den Käufer angeboten.
Alle Angaben beruhen auf den Auskünften des Eigentümers. Trotz unserer Sorgfalt können wir keine Haftung für die Vollständigkeit und Richtigkeit übernehmen.
Lage
Die Häuser befinden sich in Herbolzheim in angenehmer, zentrumsnaher Wohnlage. Das Stadtzentrum ist in wenigen Minuten erreichbar und bietet eine gute Auswahl an Einkaufsmöglichkeiten, Dienstleistungen sowie gastronomischen Angeboten für den täglichen Bedarf.
Die Verkehrsanbindung ist komfortabel: Die nächste Autobahn ist nur rund 3 km entfernt, der Bahnhof liegt in etwa 1,3 km Entfernung und ermöglicht eine gute Erreichbarkeit der umliegenden Städte und Regionen.
Auch für Familien ist die Lage attraktiv. Ein Kindergarten befindet sich in fußläufiger Nähe, ebenso wie Grundschule und weiterführende Schulen. Insgesamt überzeugt die Umgebung durch kurze Wege, eine gewachsene Infrastruktur und eine alltagsfreundliche, gut angebundene Wohnsituation.
Kindergarten 500 m | Grundschule 700 m | Gymnasium 700 m | Autobahn 3 km | U/S-Bahn 1,30 km | Zentrum 500 m
Hauptstraße 101, 101a und 103, 79336 Herbolzheim, Deutschland (Größere Karte ansehen)



































