Großzügige Halle inkl. Büro und viel Erweiterungspotenzial – frei nach Absprache –
79346 Endingen am Kaiserstuhl, Lagerfläche zum Kauf
Kontaktdaten
-
NameHerr Martin Schöchlin
-
Firmain Kooperation mit Kölblin Immobilien
-
AdresseÜber der Elz 5
79312 Emmendingen -
E-Mail Zentrale
-
E-Mail Direkt
-
Tel. Zentrale
-
Tel. Durchwahl
-
Fax004976419552128
Objektdaten
-
Objekt IDMS-1658
-
ObjekttypenHalle/Lager/Produktion, Lagerfläche
-
Adresse79346 Endingen am Kaiserstuhl
-
Grundstück ca.3.580 m²
-
Gesamtfläche ca.1.228,30 m²
-
Lagerfläche ca.1.050 m²
-
Käuferprovision3,57 zzgl. MwSt.
-
Kaufpreis1.259.000 EUR
Ausstattung / Merkmale
- ✓ Gewerblich nutzbar
Objektbeschreibung
Beschreibung
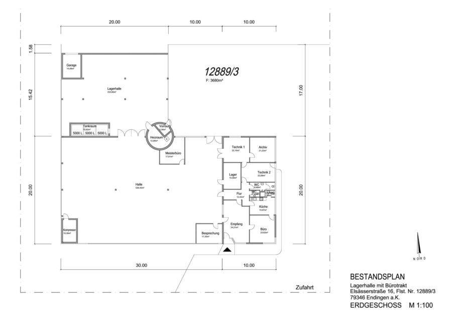
Attraktives Gewerbeobjekt im Herzen des etablierten Gewerbegebiets Endingen: Bürotrakt mit ca. 178 m², angrenzende Halle mit ca. 1.050 m² auf einem großzügigen Grundstück von ca. 3.580 m². Das in den 1980er Jahren errichtete Anwesen besticht durch solide Bauweise, hohe Qualität und flexible Nutzungsmöglichkeiten – ideal für Produktion, Lagerung, Logistik oder Dienstleistungen. Hervorragend erreichbar und zentral gelegen bietet das Objekt optimale Voraussetzungen für Ihr Unternehmen.
Ausstattung
Gesamtfläche: ca. 3.580 m²
Bürotrakt mit ca. 178 m² Gesamtfläche, gut geschnittene Räume
Halle mit ca. 1.050,29 m², ideal für Produktion, Lagerung oder Logistik
Hochwertige Bauweise aus den 1970er Jahren
Flexibles Nutzungskonzept für Produktion, Handel oder Dienstleistungen
Gute Anbindung an Verkehrswege und Infrastruktur
Sonstige Informationen
Die Käuferprovision beträgt 3,57% des notariell beglaubigten Kaufpreises inkl. der gesetzlich gültigen Mehrwertsteuer.
Alle Angaben beruhen auf den Auskünften des Eigentümers. Trotz unserer Sorgfältigkeit können wir keine Haftung für die Vollständigkeit und Richtigkeit übernehmen.
Lage
Das Objekt liegt im etablierten Gewerbegebiet „Wöllinger Weg“ in Endingen am Kaiserstuhl, am westlichen Ortsrand.
Die Umgebung ist geprägt von einer vielfältigen Branchenstruktur – Technologie, Produktion, Dienstleistungen und Handel – und bietet ein dynamisches Netzwerk für Kooperationen und Wachstum.
Für Mitarbeiter sind Lebensmittelmärkte, Gastronomien und ein Fitnessstudio in unmittelbarer Nähe vorhanden.
Bahnhof Endingen: ca. 1 km
Autobahn A5 (Anschlussstelle Riegel/Endingen): schnell erreichbar über die Umgehungsstraße
Französische Grenze: ca. 10 km entfernt
Die dargestellte Position der Immobilie ist nur eine ungefähre Angabe.















