Charmantes Einfamilienhaus, ruhig gelegen, mit idyllischem Garten und gemütlicher Erdterrasse
79312 Emmendingen, Einfamilienhaus zum Kauf
Kontaktdaten
-
NameHerr Martin Schöchlin
-
Firmain Kooperation mit Kölblin Immobilien
-
AdresseÜber der Elz 5
79312 Emmendingen -
E-Mail Zentrale
-
E-Mail Direkt
-
Tel. Zentrale
-
Tel. Durchwahl
-
Fax004976419552128
Objektdaten
-
Objekt IDMS-1635
-
ObjekttypenEinfamilienhaus, Haus
-
Adresse79312 Emmendingen
-
Wohnfläche ca.153 m²
-
Grundstück ca.550 m²
-
Zimmer5
-
Schlafzimmer4
-
Badezimmer1
-
Separate WC1
-
Terrassen1
-
Wesentlicher EnergieträgerGas
-
Baujahr1998
-
Zustandteil-/vollrenoviert
-
Stellplätze gesamt1
-
Stellplatz1 Stellplatz
-
Käuferprovision3,5 % zzgl. MwSt.
-
Kaufpreis699.000 EUR
Ausstattung / Merkmale
- ✓ Separates WC
- ✓ Stellplatz
- ✓ Terrasse
Objektbeschreibung
Beschreibung
Dieses 1998 erbaute Einfamilienhaus mit ca. 153 m² Wohnfläche überzeugt durch eine gelungene Kombination aus Gemütlichkeit und moderner Ausstattung. Auf drei Etagen bietet es helle Räume, einen offenen Grundriss, eine EG-Terrasse und Garten.
Im Erdgeschoss befinden sich der Wohn-, Ess- und Küchenbereich mit sichtbaren Holzbalkendecken und Kaminofen sowie eine moderne Einbauküche. Von hier gelangt man direkt auf die Terrasse und in den Garten. Ergänzt wird diese Ebene durch ein Gäste-WC, Abstellraum und Vorratskammer.
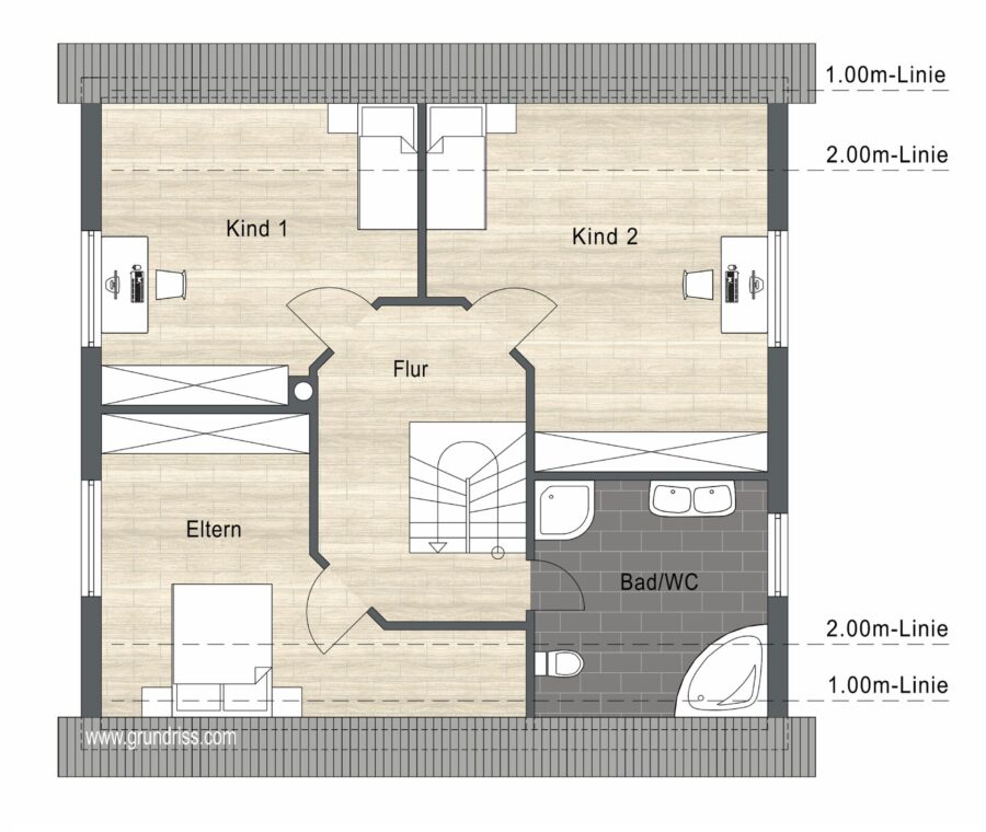
Im Obergeschoss liegen drei Zimmer, nutzbar als Schlafzimmer, Kinderzimmer, Büro oder Gästezimmer, sowie ein großes Badezimmer mit Badewanne und begehbarer Dusche. Das Dachgeschoss bietet ein weiteres flexibel nutzbares Zimmer.
Das Haus wurde 2021 umfassend renoviert: Heizkörper neu gestrichen, Gasheizung und Warmwasserspeicher erneuert und seitdem regelmäßig gewartet, Bodenbeläge (Fliesen, Laminat) erneuert sowie Innenwände gestrichen.
Bezug nach Absprache möglich!
Ausstattung
- Offener Wohn-, Ess- und Küchenbereich mit Kaminofen und sichtbaren Holzbalkendecken
- Direkter Zugang von Esszimmer zur Terrasse und in den Garten
- Moderne Einbauküche mit hochwertigen Elektrogeräten (erneuert 2021)
- Tageslicht-Gäste-WC im Erdgeschoss (erneuert 2021)
- Arbeitszimmer, Vorratskammer und Abstellraum
- Großes, helles Badezimmer mit Badewanne und begehbarer Dusche im Obergeschoss (erneuert 2021)
- Heizkörper neu gestrichen (2021)
- Boden, Fliesen und Laminat erneuert (2021), Haus innen frisch gestrichen
- 3 Zimmer im Obergeschoss, zusätzlicher Raum im Dachgeschoss flexibel nutzbar
- Gas-Brennwertkessel mit Trinkwasserspeicher (Energieeffizienzklasse A, 2021), jährliche Wartung
- Solarpaneele auf dem Dach
- Hoher Wohnkomfort durch moderne Ausstattung und Renovierungen
- Kombination aus Gemütlichkeit (Kamin, Holzbalken) und zeitgemäßer Technik
Sonstige Informationen
Die Käuferprovision beträgt 3,57% des notariell beglaubigten Kaufpreises inkl. der gesetzlich gültigen Mehrwertsteuer.
Alle Angaben beruhen auf den Auskünften des Eigentümers. Trotz unserer Sorgfältigkeit können wir keine Haftung für die Vollständigkeit und Richtigkeit übernehmen.
Lage
Die Immobilie befindet sich in einer attraktiven Wohnlage von Emmendingen und verbindet ein ruhiges Umfeld mit einer hervorragenden Anbindung an alle wichtigen Einrichtungen des täglichen Lebens.
Einkaufsmöglichkeiten wie Supermärkte, Bäcker, Apotheken und Drogeriemärkte sind schnell erreichbar und sorgen für eine bequeme Versorgung im Alltag. Auch medizinische Einrichtungen, Ärzte und das Emmendinger Kreiskrankenhaus liegen in gut erreichbarer Nähe.
Familien mit Kindern profitieren von einem umfangreichen Betreuungs- und Bildungsangebot: Kindergärten, Grundschulen sowie weiterführende Schulen befinden sich in der Umgebung und sind auf kurzen Wegen erreichbar.
Für Freizeit und Erholung bietet die Umgebung zahlreiche Grünflächen, Spielplätze und Spazierwege, während das lebendige Stadtzentrum mit Cafés, Restaurants, Geschäften und kulturellen Angeboten zusätzlichen Charme verleiht.
Dank der sehr guten Verkehrsanbindung – sowohl an den öffentlichen Nahverkehr als auch an überregionale Straßen – ist eine schnelle Erreichbarkeit der umliegenden Gemeinden sowie der Städte Freiburg und Basel gewährleistet.
Damit eignet sich die Lage ideal für Familien ebenso wie für Paare oder Berufspendler, die ein ruhiges Zuhause mit Nähe zu urbanem Leben suchen.
Die dargestellte Position der Immobilie ist nur eine ungefähre Angabe.

















